Una demanda de los caudetanos era habilitar una cocina en “La Sala” para poder realizar eventos con catering de forma cómoda y segura, proyecto en el que se ha trabajo intensamente, y que por fin y tras un largo tiempo vió la luz el pasado mes de Febrero, donde la Comparsa de Guerreros fue quien dio el primer uso a dicho espacio con su Cena de Hermandad. Un proyecto marcado para ser puesto en funcionamiento en la presente legislatura y que es ya una realidad, fruto del compromiso con los caudetanos.
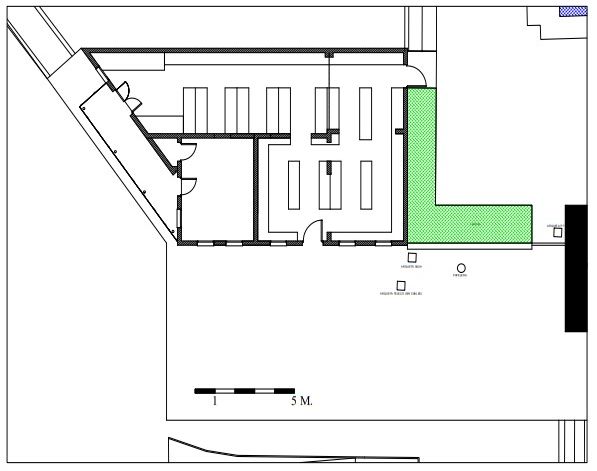
Pilar Egea y Moisés López, Concejales de Deportes y de Obras respectivamente han presentado el nuevo espacio proyectado para el complejo, un almacén de material deportivo que se hace necesario y prioritario, ya que el espacio de la actual Cocina y colindantes, era la zona de almacenaje y acopio de principalmente todo el equipamiento de la Piscina de Verano y otros elementos de la práctica de múltiples deportes.
Así pues, el proyecto diseñado por los Técnicos Municipales, ha sido cuantificado en 24.990,11€ quedando el importe englobado específicamente en el Presupuesto Municipal 2026, por lo que una vez esté definitivamente aprobado éste, podrá ponerse en marcha su licitación. De hecho, el expediente ya se ha activado, estando en espera de ser aprobado el mismo por la Junta de Gobierno Local.
El Almacén estará ubicado junto a la Piscina de Verano, con acceso desde ella para facilitar el acceso al mismo, junto a la actual construcción existente del almacén y recinto del C.D.Caudetano.


Almacén Deportes – Proyecto Existente

Almacén Deportes – Proyecto Propuesto
Last modified: 18 de marzo de 2026









