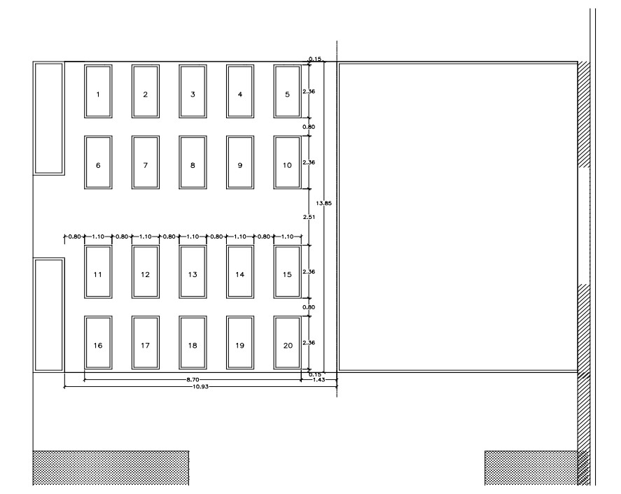
El Alcalde Moisés López, encargado además de la gestión del Cementerio, ha informado que la Junta de Gobierno Local celebrada el pasado viernes dio luz verde a la memoria valorada que permitirá la construcción de 20 Sepulturas en el Camposanto.
Fabricadas en módulos de hormigón, estarán ubicadas en la zona que el pasado año fue urbanizada, y que será la primera de dos fases. Tendrá espacio para albergar 3 cuerpos, pudiendo ser usada esta unidad de enterramiento sin necesidad de esperar a los 5 años que marca la legislación, lo que aporta una gran ventaja para su uso, así como por su capacidad.
La novedad es que las Sepulturas se otorgarán previamente, para lo cual tras los trámites necesarios, se pondrá a disposición de los interesados la reserva de las mismas previo pago, de forma que una vez preconcedidas, se proceda a la construcción de las mismas, gestiones que según las previsiones del Consistorio se deberán quedar realizadas a finales del presente año 2025. No obstante, se dará la debida información a su tiempo.
Last modified: 23 de junio de 2025














